Custom-Built Eco-Friendly Luxury Villa in Belek with Elevator and Master Suite Design

Ongoing Projects in Belek | Luxury Villas Antalya

Overview of the New Custom Built Villa Concept

This custom built eco friendly luxury villa in Belek is the refined continuation of your completed project. The underlying concept stays the same because it already proved its strength in Belek: a premium coastal location, private villa lifestyle, strong rental demand, and a sustainable modern identity. What changes in this new version is the daily living experience. The plan is upgraded with several high impact improvements that shift the villa into a higher luxury tier and make it even more attractive for end users and investors.

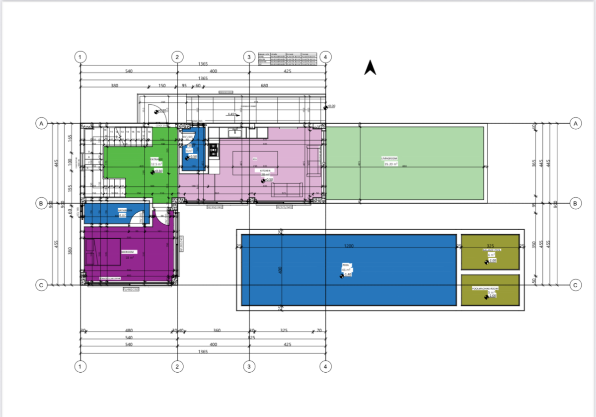
The entrance floor includes a private bedroom with its own ensuite bathroom. This adds real flexibility for families and guests and creates comfortable ground floor living for anyone who prefers easy access. The kitchen is redesigned around a central island, matching modern open living expectations and giving the home a warm social heart. A private elevator is integrated into the building, making all floors effortless to reach and placing the villa in a rare premium category for Belek. The middle floor becomes a complete master suite level, featuring a large master bedroom, a walk in dressing room, and a master bathroom with both shower and bathtub, delivering a true spa style residential experience.

These upgrades are not cosmetic. They are functional luxury elements aligned with how international buyers want to live in Belek today and how they want to protect value long term.

Why Belek Is the Ideal Market

Belek is one of Antalya’s most prestigious real estate districts and a long standing favorite for European buyers. It offers calm planned living surrounded by pine forests and wide sandy beaches, while remaining close to Antalya city and Antalya International Airport. Easy access supports both personal use and holiday rental convenience, strengthening demand and resale liquidity.

Belek also has year round tourism. Golf tournaments, sports camps, wellness travel, and family holidays keep the area active far beyond summer. That means villas enjoy longer rental seasons and more stable occupancy. In a district where buyers already seek premium features and privacy, a custom built villa performs above standard inventory.

Custom Built Design as a Premium Advantage

This villa is custom built rather than a generic template repeated across multiple units. In luxury markets, custom built properties carry stronger emotional appeal and higher perceived value because they avoid design compromises. They feel unique at first sight, live better over time, and resell more easily due to rarity.

Custom built villas in Belek are preferred because they deliver better flow, clearer luxury identity, and a stronger list of features that buyers immediately recognize as premium.

Entrance Floor Ensuite Bedroom

Adding one ensuite bedroom on the entrance floor upgrades livability for multi generational families and frequent guests. It can serve as a guest suite, a senior friendly bedroom, or a private work and rest zone. For rentals, this feature broadens the tenant profile and increases satisfaction, especially for families with young children or travelers who value easy movement without stairs.

Kitchen Island and Social Living

The kitchen island signals modern luxury and practical comfort. It increases workspace and storage while supporting open plan social living. European buyers often place strong value on kitchens that feel integrated and premium, and an island makes the space a natural gathering center for daily life and entertaining.

Private Elevator

A private elevator is still a rare feature in Belek villas, so it immediately separates this home from standard stock. It increases comfort for all ages, protects long term usability, and adds a hotel grade luxury feel. For investors, it also attracts a higher budget guest profile.

Complete Master Suite Middle Floor

The master suite level gives the owner a private retreat separated from other bedrooms. The walk in dressing room adds organization and lifestyle quality. The master bathroom with both shower and bathtub transforms daily routines into a spa style experience, increasing luxury perception and buyer appeal.

Eco Friendly Luxury Identity

The eco friendly foundation remains central. Sustainable villas are rising in demand because buyers want lower running costs, healthier indoor comfort, and future proof value. In Belek, eco luxury is increasingly seen as the premium standard.

Outdoor Privacy Private Pool Lifestyle

The outdoor concept stays the same as your successful model. Belek climate supports outdoor living for most of the year, so private gardens and pools are essential. Private pool villas consistently achieve higher rental prices and stronger occupancy because guests prioritize privacy and resort comfort without shared facilities.

Golf Beaches and Major Attractions

Belek is Turkey’s golf capital. Championship level courses keep demand strong through multiple seasons. Wide beaches, beach clubs, and walking paths offer a high quality coastal lifestyle. The Land of Legends nearby supports year round family tourism, reinforcing rental and resale strength.

Investment Strength of the Upgraded Version

This upgraded custom built villa improves investment performance because rarity plus premium features raise rental rates and accelerate resale liquidity. The entrance floor ensuite bedroom, kitchen island, private elevator, and full master suite level place the villa in a top tier category with fewer direct competitors. Combined with Belek’s year round demand, the property becomes a strong lifestyle asset and a reliable high yield tool.


This custom built eco friendly luxury villa in Belek is an evolved premium version of a proven concept. The upgrades elevate comfort, market class, and investment logic. When you share numeric specs such as room count, gross and net size, land size, bathroom count, furnishing status, pool details, and distances, I will lock them into this text and deliver the final sales version.

Project Details

  • Project ID: 3
  • Project Category: Ongoing Projects in Belek | Luxury Villas Antalya
  • Project Status: Active
  • Created Date: Nov 28, 2025
  • Last Updated: Nov 28, 2025
  • Project Type: Construction
Fill out the form, and we will give you a call!

Contact Us

+90 (533) 399 16 51

Antalya's Leading Real Estate Company

We are working diligently to present you the most beautiful apartments with the best price options.